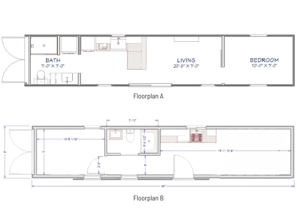
Backcountry Containers have ingeniously transformed a 40-foot-long shipping container into a well-designed off-grid home called the Kennedy Model. It features an open interior layout elegantly finished with vinyl flooring and white shiplap walls, complementing the exterior’s wood accents.
This home is based on a high-cube shipping container, which is taller than a standard container for more headroom. Double glass doors lead to a light-filled, airy interior measuring roughly 300 square feet. The house opens directly to a cozy living room with a small sofa, a chair, and a coffee table.
Meanwhile, adjacent to the living area is a small and well-equipped L-shaped kitchen with a breakfast bar for two, a fridge/freezer, and an induction cooktop. The Kenny Model also has a farmhouse-style sink and ample cabinetry for storage.
Just beside the kitchen and accessible via a sliding door is the bathroom. It has a flushing toilet, a modern shower, a sink, and storage cabinets. Then, at the opposite end of the home, adjacent to the living room, is a sliding barn door that opens to the bedroom for two. The bedroom has a double bed with storage underneath, a large wardrobe, and ample headroom to stand upright.
The Kennedy Model has a ceiling fan and a mini-split air conditioner to ensure comfort throughout the changing seasons. It also has insulation installed to counteract the thermal challenges of living in a large metal container. Best of all, it has a water tank and runs off the grid, although not via solar power but from a generator.
Check It Out

Images courtesy of Backcountry Containers