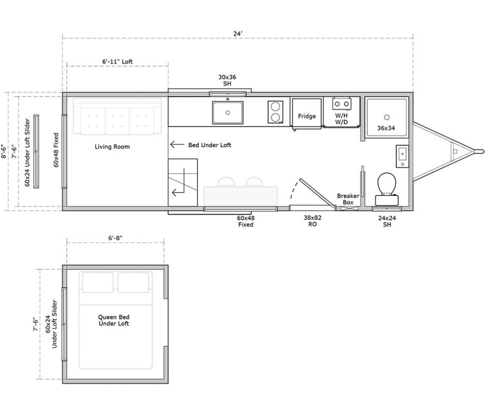
The Pingora by Wind River Tiny Homes is a towable home founded on a double-axle trailer. It is compact at just 24 feet long and features a clever loft style layout to utilize the space.
But whereas the bedroom is usually located in the loft area, this tiny home has an “upside-down” layout. The bedroom is placed in the 204 sq. ft. main level, while a few steps up on the loft is the living room. The company called it a “reverse loft layout.” The bedroom is tucked under the loft and can fit a queen mattress comfortably.
There isn’t much head space so you’d have to duck to get inside. You’d also have to watch your head when you wake up and by the looks of it, could feel claustrophobic to some. On the other hand, The Pingora has a spacious enough living room to set up an extra mattress or a sofa bed.
Meanwhile, directly beside the bedroom is a small kitchen equipped with a sink, built-in cabinetry for storage, and several appliances to make the tiny house living experience comfortable. These include include a Summit 2-burner electric cooktop, a Whirlpool 3/4-size fridge, a propane on-demand water heater, and an LG mini split that can efficiently warm and cool the interior.
Then opposite the living room on the other end of the home is a compact bathroom equipped with a vanity sink, shower, and a Kohler Cimarron gravity flush toilet. A small secondary loft above the bathroom accessible by a ladder can serve as storage space. Meanwhile, a plug located on the tongue end allows The Pingora to hookup to a 50 AMP for power.
Learn More Here

Images courtesy of Wind River Tiny Homes